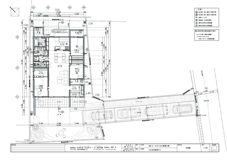
うるま市
土地面積:100.85坪(約333.41㎡)
建物面積:31.17坪(約103.07㎡)

<提案したいこと>
いつもの今日を、ちょっと「お洒落」にする。
いつもの今日が、きっと、楽しくなる。
派手でもなく、素朴でもなく、飽きのこないシンプルなデザイン。
どんなシーンにでも合わせることのできる「心地の良い」空気感。
みんなが今日のできごとを話し出す「和気あいあい」とした空間。
自分の時間、家族との時間、仲間との時間、豊かで癒される時間。
そこには、「笑顔」があふれる。そんな「我が家」を提案したい。
ちょっとお洒落+ちょっと便利+ちょっと嬉しい
「ちょっと良い」と感じてもらえたら
「いっぱい嬉しい」です。
設計・建築のコンセプト
<この建物を「鉄筋コンクリート造」にした理由>
沖縄の建物は「台風や白蟻」の被害で「木造から鉄筋コンクリー
ト造」へ変化をしてきました。鉄筋コンクリート造は、強度(耐久
性)に優れ、台風・白蟻・火災に強いなど、沖縄の気候に適してい
ると考えます。「一生の買物にふさわしい物件」を目指しました。
建築費用が高騰している現在、「住む人の目線」にたち、専門的な視
点から「耐久性」を重視し、価格に納得でき、快適に暮らせる住宅建
設を心がけることが「お客様の満足」につながると考えています。
<地形に合わせた窓のデザイン>
旗状地で北西側にアパートがある立地の中、南西側の解放感を生かし
「窓&坪庭」をデザインすることで、「明るさ&通風&清潔感」を確
保し、プライベート性を高めました。デメリットを解消したことで、
周囲の目線が「空き巣」などの犯罪防止になり、アパートが西陽をさ
えぎってくれるなど、メリットの1つに加わりました。
「広い空とゆっくりと流れる時間」を演出しました。
<販売価格とお客様の満足のバランス>
販売価格を下げる為には、建築コストを削減しなければいけません。
建築コストの削減だけを追及すると、「利便性・デザイン性」などが
損なわれます。便利と感じたり、お洒落と感じたりする部分は、余分
にコストがかかります。その部分を削減することよりも、建物の耐久
性を維持したうえで、「コストの削減 vs 快適に暮らす」のバランス
を取ることが「価格に納得できる家」につながると考えます。
建物の特徴
日常生活の利便性を重視し、家族の集い+個人の時間を満喫する家
であり、収納を充実させ整理整頓を行うことで、解放感・清潔感を
感じられるシンプルな間取りです。又、庭+坪庭+照明等で非日常
を演出し、お洒落で癒される飽きのこないシンプルデザインです。
全体的に「白」を基調とした「モノトーン」で統一し、インテリア
や家具・電化製品を選ぶ際に、建物室内のデザインが邪魔をしない
ような色使いにしました。特にキッチン&浴室&洗面室&トイレは
「白」を強調して、「明るく清潔感」のある空間を演出しました。
ファミリースペース(リビング&ダイニング&浴室)は、家族との
時間を、仲間との時間を、楽しく、ゆっくりと、豊かに過ごせるよ
う、非日常的空間を演出しました。個室(寝室&洋室)は自分の時
間(睡眠&休養&読書&勉強・・・他)を、静かに、しっとりと、
穏やかに過ごせるようプライベート性を高めた空間にしました。
玄関&トイレは、お洒落に、お迎えができ、楽しんでもらえるよう
に、遊びの空気感を演出しました。キッチンは、快適に調理ができ
るよう、リビング&ダイニングと離脱して、収納&機能性を重視し
ました。各部屋にこだわりを持った「オンリーワンの住宅」です。
各部屋の「クローゼット&収納」を充実させることで。できるだけ
収納等を買い足さないで済むように配慮しました。又、埋込収納で
凸凹を無くし、ほこりがたまらない、お掃除のしやすい部屋です。
玄関ドア+部屋の扉を「引戸」にして、危険性+出入りの際のわず
らわしさを解消しました。特に玄関ドアは、子供や高齢者が強風時
にケガや指を切断をしないように、安全性を重視しました。
うるま市の「うるま」の語源は、「珊瑚でできた島」という意味で
す。玄関ポーチ&エントランス&ヒンプンを「珊瑚の化石」の琉球
石灰岩調の塗装でデザインをして、「うるま市」を表現しました。
窓から庭&坪庭を眺めながら、「空・雲・星・陽だまり・風・雨」
を身近に感じて「無心になり、癒される空間」を満喫して下さい。
旗状地であるため、人目を気にしない庭の景色を確保できました。
北側の洋室に面した坪庭に黒木を植えた翌日、「メジロ」がやって
来て、巣を造りだしました。内装工事の途中で、職人さん達は気を
使いながら作業を続ています。「メジロ」は警戒しながらも巣造り
を続けて「3羽のヒナ」が産まれました。「ヒナ」は警戒心が薄く
人が来ても逃げません。しばらくの間、黒木の近くで遊んでいま
したが、無事に巣立ちました。私達を癒してくれて、ありがとう!
今を感じて暮らす癒される我が家
<日常&非日常の共演>
建物のコンセプト
ちょっとお洒落+ちょっと便利+ちょっと嬉しい
やわらかく・優しく・ゆっくりと流れる時間
陽だまり+そよ風+ほのぼの=やすらぎ
明るくシンプルなデザインで開放感
居心地・機能性・清潔感を重視
充実収納で各部屋を整理整頓
個々の時間+家族の時間
日常と非日常の共演
「窓」で陽の演出
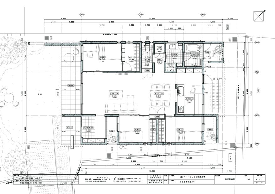
3LDK<オール洋室> 31.17坪
寝室9・洋室6.7・洋室5.7・LD21・K5.4



陽・空・雲・風・雨・星・緑
「時を感じて暮らす家」
リビング&ダイニング(21畳)
◎明るく優しいシンプルな部屋
◎家族or1人orホームパーティー=時を楽しむ空間
◎照明調整(明・暗・昼光色・電球色)=雰囲気に合わせた演出
◎アンティック調の壁でキッチンと離脱=非日常を演出
◎MyCAFE=スマートに珈琲time
◎天井(高さ2.7m)
◎ハイサイドライト(吹抜)=陽だまり+そよ風
◎大きな掃出窓=広い空+光or星or雨+雲+風+庭
◎掃出窓⇆ハイサイドライト=流れる風
◎凸凹が無く最大限の空間を確保
◎埋込収納棚=ほこり防止+清潔感
◎TV:壁掛=すっきり
◎DVD(BD)レコーダー=埋込収納棚

電気ポット+珈琲メーカー・・・etc

DVD(BD)レコーダー・オーディオ機器・・・etc

リビング⇨テラス⇨庭⇨空へ

ハイサイドライト(吹抜)
アンティーク調のタイル貼りの壁でキッチンと離脱
・・・・・・・・・・・・・・・・・・・・・・・・・・・・・・・・・・・・・
キッチン(5.4畳)
◎リビングダイニングと離脱=調理に専念
◎コンクリートの壁で防火性up
◎小窓でリビングダイニングとつながる
◎エアコン=暑い夏でも快適に調理
◎換気扇を追加=煙&湿度対策
◎照明&手元照明で明るい
◎ホーローキッチン+IHヒーター=傷に強くお掃除楽々
◎ホーローパネル=傷に強くお掃除楽々
◎食洗器+水切棚2か所で洗い物すっきり+整理整頓
◎パントリー:食器+食品+ホットプレート+薬箱他
◎収納棚:電子レンジ+炊飯器+トースター+ゴミ箱
◎火の神置場=火の用心+健康祈願+神様に報告
ホーローキッチン 水切棚2ヶ所&食洗器

大型パントリー

収納棚 IHヒーター

火の神置場 窓からリビングダイニング

エアコン&換気扇

・・・・・・・・・・・・・・・・・・・・・・・・・・・・・・・・・・・・・
主寝室(9畳:寝室6畳&ウォークインクローゼット3畳)
寝 室(6畳)
◎TV:壁掛=ミニシアタールーム?=夫婦の時間
◎埋込収納棚:BD(DVD)レコ-ダ-&本・etc
◎照明調整(明・暗)=光の演出
◎デスク用照明
◎窓=庭+タイル貼壁+空+雲+風+雨=癒し空間

TVは壁掛&BD(DVD)レコ-ダ-は収納棚

ウォークインクローゼット(3畳)
◎収納棚:時計+バッグ+アクセサリー+帽子・etc
◎換気扇=湿気防止


・・・・・・・・・・・・・・・・・・・・・・・・・・・・・・・・・・・・・
洋室1(6.7畳) 洋室2(5.7畳)
◎クローゼットを充実(幅2m)
◎クローゼット内に換気扇=湿気防止
◎照明調整(明・暗)=光の演出
◎デスク用照明
◎窓=白壁+植物+陽だまり+そよ風=プライベートtime

窓:洋室(1) メジロの子育て

窓:洋室(2) クローゼット内換気扇

・・・・・・・・・・・・・・・・・・・・・・・・・・・・・・・・・・・・・
浴室&坪庭
◎窓=観葉植物+陽だまりor雨+そよ風=リラックスtime
◎ホーロー浴槽:防カビ+傷に強い=清潔感up!
◎洗濯物干ワイヤー+換気扇4倍強化=外出&雨天に便利


・・・・・・・・・・・・・・・・・・・・・・・・・・・・・・・・・・・・・
洗面室&脱衣室
◎広々洗面台+大きな鏡=使い易さ重視
◎洗面台下部:脱衣かご+椅子+扇風機orストーブ
◎洗濯機+衣類乾燥機(電気orガス)スペース
◎タイル貼の床で、洗濯機裏のお掃除楽々
◎ガス衣類乾燥機用配管
◎収納棚A:歯ブラシ+髭剃機充電用コンセント・etc
◎収納棚B:下着+パジャマ+タオル・etc
◎出入口扉+収納扉:傷+熱+湿気に強い材質
広々洗面台 歯ブラシ&髭剃機充電



・・・・・・・・・・・・・・・・・・・・・・・・・・・・・・・・・・・・・
トイレ
◎飾棚で楽しくお洒落に!
◎清掃用品収納スペース
◎収納棚:トイレットペーパー+生理用品
◎出入口扉&収納扉:傷+湿気に強い=清潔感up!


・・・・・・・・・・・・・・・・・・・・・・・・・・・・・・・・・・・・・
多目的収納棚(廊下)
◎掃除機+ゴルフバッグ+扇風機+暖房器具・etc
◎敷掛布団シーツ+枕カバー+毛布・・・etc
◎ロボット掃除機の取付スペース

ロボット掃除機スペース

・・・・・・・・・・・・・・・・・・・・・・・・・・・・・・・・・・・・・
玄関エントランス+坪庭
◎ガラス製玄関ドア:明るくシンプルデザイン
◎坪庭:お洒落で爽やかにお出迎え
◎大型靴箱:(幅1.9m×高2.4m)


・・・・・・・・・・・・・・・・・・・・・・・・・・・・・・・・・・・・・
玄関ポーチ(琉球石灰岩調のデザイン)
◎引戸式玄関ドア=強風時に安全+荷物の出し入れが便利
◎ガラス製玄関ドア=明るくナチュラルデザイン
◎ヒンプン:インターホン+ポスト
◎琉球石灰岩調の塗装で「うるま市」を表現
「うるま=珊瑚でできた島 琉球石灰岩=珊瑚の化石」

・・・・・・・・・・・・・・・・・・・・・・・・・・・・・・・・・・・・・
庭&テラス(タイル貼のデッキ)
◎BBQ・子供との時間・読書・日向ぼっこ・・・
◎空+雲+光+風+星+雨+庭=今を楽しむゆとりの場所
広い空、ゆっくりと流れる時間


・・・・・・・・・・・・・・・・・・・・・・・・・・・・・・・・・・・・・
駐車場
◎縦列駐車4台
◎電気自動車用充電コンセントを配線
・・・・・・・・・・・・・・・・・・・・・・・・・・・・・・・・・・・・・
屋根(ウレタン遮熱防水塗装)
◎屋根を保護して、老朽化を防ぎます。
◎室内の暑さをやわらげます。
◎屋根は建物で最重要構造部分です。
外壁塗装は油性塗料を使用しました。油性塗料は水性塗料より
耐久性(長持ち)が良く建物の老朽化を防ぎます。
・・・・・・・・・・・・・・・・・・・・・・・・・・・・・・・・・・・・・
物件概要
◎所在:うるま市
◎価格:○○○万円(消費税込み)
◎地目:宅地
◎土地:333.41㎡(100.85坪)
◎建物:103.07㎡(31.178坪)
◎間取:3LDK(洋9・洋6.7・洋5.7・LD21・K5.4)
◎築年:平成29年8月<新築>
◎構造:鉄筋コンクリート壁式構造陸屋根平屋建て
◎駐車場:縦列4台可能
◎学校区:幼稚園・小学校・中学校
◎市街化区域
◎用途地域:未指定
◎特定用途制限地域:集落環境保全地区
◎高さ制限:11m
◎建蔽率:60%
◎容積率:100%
◎接面道路:南東4m(うるま市道)
◎専用通路:4m
◎取引態様:
◎上下水道・雨水:うるま市
◎ガス:プロパン
◎床:チークフローリング
◎屋根:ウレタン遮熱防水塗装
◎ホーローキッチン・ホーローパネル
◎IHヒーター
◎ホーロー浴槽







メールでのお問合せはこちらから






