GL企画|沖縄県那覇市|1K 賃貸アパート カーサ・グランツ 賃貸管理 ファイナンシャルプランナー

GL企画









   ゆっくりと流れる時間「光・風・雲」の演出
     静かに眺める「おもろまち」の街並み




  

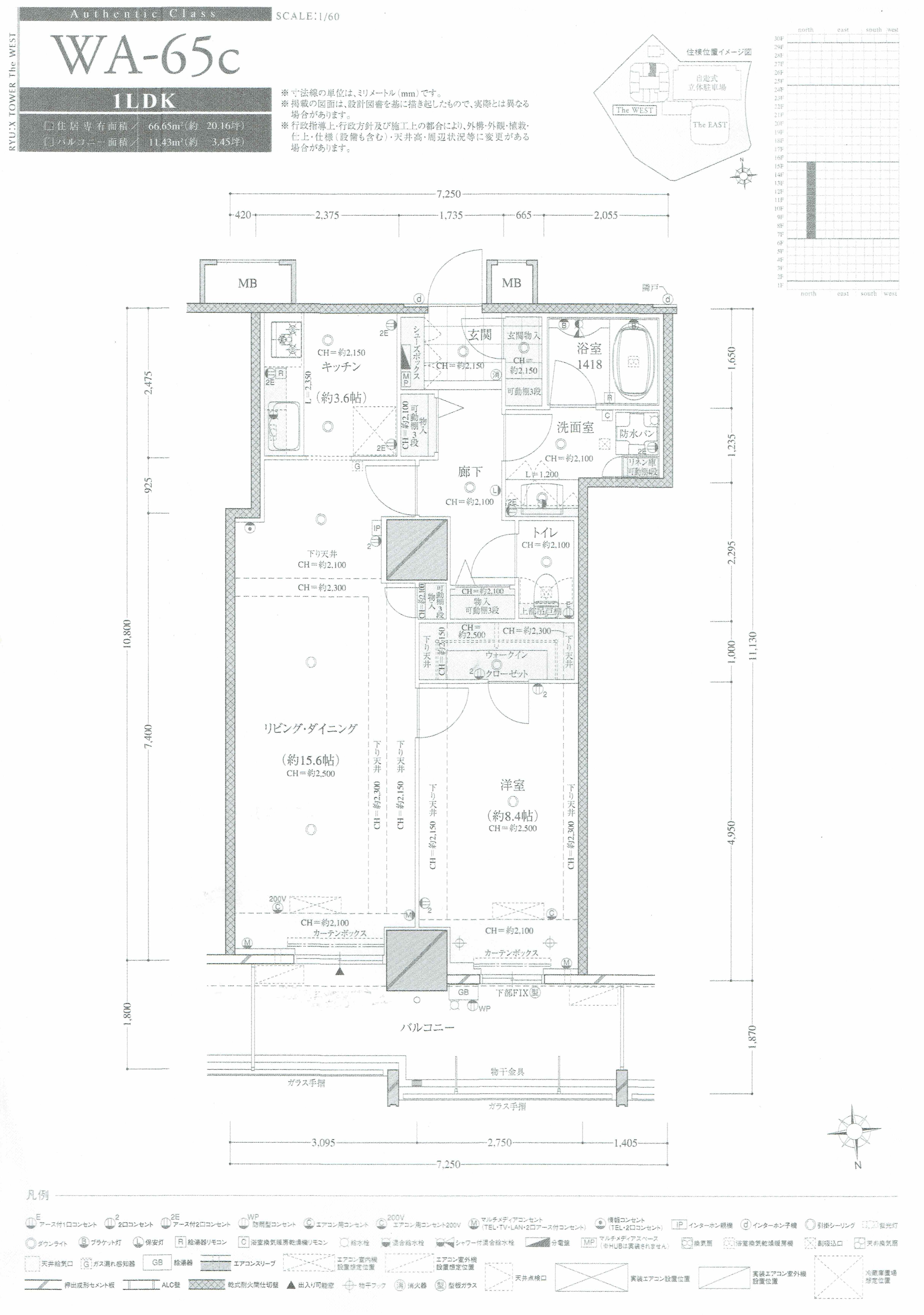
    RYU:X TOWER The WEST
      11階(30階建)



   価格4,250万円
    1LDK 64.92㎡(19.63





リビング・ダイニング





キッチンスペース



バスルーム・洗面脱衣室・洗濯機置場・トイレ

 

 

エントランス・エレベーターホール・郵便ポスト







ロビ-・GYM・駐輪場










売買契約締結済(買主様の銀行融資承認待ち)です。
       キャンセル待ち受付中!



◎那覇市おもろまち1丁目1-25
 RYU:X TOWER The WEST(西棟)

◎価   格:4,250万円
◎面   積:64.92㎡(19.63坪)
◎間 取 り:1LDK(洋8.4 LD15.6 K3.6)
◎階   数:11階/30階建
◎土   地:所有権(敷地権)
◎新築年月日:平成25年9月20日(2013年)
◎管 理 費:10,860円
◎修繕積立金:09,810円(団地修繕積立金含む)
◎駐 車 場:7,000円(屋上)~15,000円(屋根付)
◎駐 輪 場:バイク(小型:500円 大型:1,000円)
◎駐 輪 場:自転車(200円~400円)
◎管理会社 :大和ライフネクスト株式会社

★クロス(壁紙)全面張替済(2022年6月)
★お洒落でエレガントな部屋
★収納充実・ウォークインクローゼット
★コンシェルジュサービス・宅配ボックス
★パーティールーム(500円/1時間 5時間以内)
★ゲストルーム(有料/予約制)
★GYM(1,000円/月)
★各階にゴミ置場(いつでもゴミ出しOK!)
★BSテレビ対応
★セキュリティ充実





    土日祝日でもご案内致します。
      9:00~19:00

     098-988-8550




宅地建物取引業者
沖縄県知事(5)第3477号
那覇市赤嶺1-4-2
 SYビル302号